For Lease

211 E 123rd St

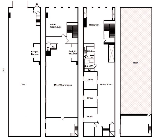
2,500 SF Ground Floor Office/Drive-In with included 1200 SF Basement
  • Space Size:
    2,500 SF + 1,200 SF Basement
  • Number of Units:
    1
  • Building Size:
    8,000 SF
  • Property Type:
    Office, Retail, Industrial

Property Description

Between 2nd & 3rd Avenues

HIGHLIGHTS

  • Easily Accessed by Major Transportation
  • Large Overhead Door with Drive-In Bay
  • Fully Built Out Offices with HVAC
  • Warehouse With Office for Lease
  • Merchandise Freight Lift- No Passenger Use
  • Ideal for a Distributor, Manufacturer, E-Commerce Business, Automotive and much more

Address & Map

Full Address: 211 E 123rd St, New York, NY 10035

Browse Other Properties

For Sale

228-252 East 122nd Street

106,426 Buildable SF | 210' Wide | Opportunity Zone Development Site | East Harlem
For Sale

1824 Park Ave

161,913 Buildable SF | 149.92' Wide | Central Harlem
For Lease

124-132 East 124th Street

Total of 38,950 sqft | 6 Stories plus Penthouse, Basement | Drive-In Ground Floor & Freight Elevator| Adjacent Parking/Yard
For Lease

138 W 25th Street

2,500 SF Ground Level Retail Space | 1,200 SF Lower Level Included | 30' Frontage with Excellent Visibility | Heavy Foot Traffic & Vehicular Traffic Block
For Lease

129 E 124th St

2,500 SF of Office Space Available in New York, NY 10035
For Lease

178 East 124th Street

Entire Elevator Building Plus Parking For Lease- Total of 15,000 SF Available in New York, NY 10035
For Lease

120 West 31st Street

1,750 SF of Office Space Available in New York, NY 10001
For Lease

160-164 East 124th Street

63.99' x 100.92' | 6,500 sqft | Located on E 124th ST Between Lexington & 3rd Ave | Immediate Proximity to MTA 125th Station
Enquire about 211 E 123rd St
Anthony Gagliano - Property Leads

Register Your Interest for this property

Enquire about 211 E 123rd St
Paul McVeigh - Property Leads